Alti
2 Bedrooms
1 Bathrooms
1,232 sqft

Description
A muted color palette that provides a calmer atmosphere if you prefer this aesthetic. Fully customizable original plan.
Features
- Muted color palette
- Calmer atmosphere
- Fully customizable design
- Ecological and sustainable construction
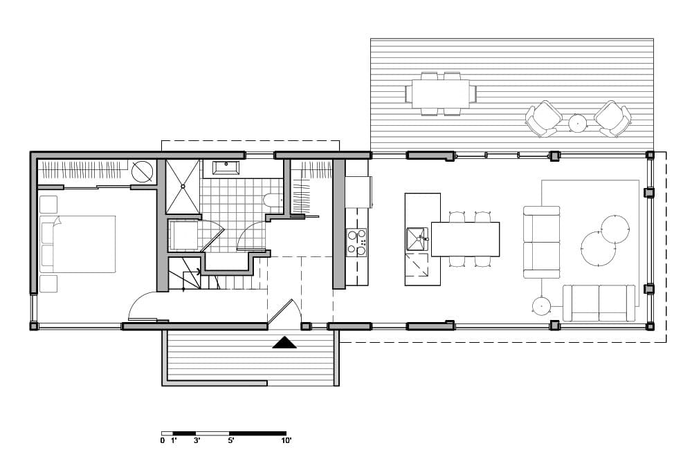
Floor Plan

Image Gallery

1 / 9
$250,000 - $375,000
The price variation is explained by the complete personalization of the house (area, materials, options).
Request InformationView Available LotsCustomization Available
All cottage models can be customized to meet your specific needs.
Initial Characteristics
| Total Area | 16' × 55' |
| Kitchen | 9'-0" × 14'-7" |
| Dining Room | 8'-9" × 14'-7" |
| Living Room | 8'-7" × 14'-11" |
| Foyer | 11'-9" × 5'-11" |
| Primary Bedroom | 10'-7" × 11'-10" |
| Secondary Bedroom | 14'-7" × 9'-4" |
| Bathroom | 10'-5" × 8'-4" |
The price variation is explained by the complete personalization of our houses (area, materials, options). The price excludes the land, foundation and on-site work. A virtual or in-person meeting allows you to obtain an accurate estimate.
The images, photos, 3D renderings, plans and measurements presented on this site are provided for information purposes only.
Ready to Make This Your Home?
Contact us today to discuss this model and start building your dream cottage
Contact Us