Nanö

Description
Des couleurs vibrantes qui le distinguent de son environnement naturel à couper le souffle. Plan original suggéré, entièrement personnalisable.
Caractéristiques
- Vibrant colors
- Distinctive aesthetic
- 3 bedrooms
- Fully customizable
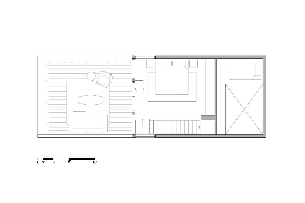
Plan d'Étage

Galerie d'Images

La variation de prix s'explique notamment par la personnalisation complète de la maison (superficie, matériaux, options).
Demander des InformationsVoir les Terrains DisponiblesPersonnalisation Disponible
Tous les modèles de chalets peuvent être personnalisés pour répondre à vos besoins spécifiques.
Les caractéristiques initiales
La variation de prix s'explique notamment par la personnalisation complète de nos maisons (superficie, matériaux, options). Le prix exclut le terrain, la fondation et les travaux sur place. Une rencontre virtuelle ou en personne permet d'obtenir une estimation précise.
Les images, photos, rendus 3D, plans et mesures présentés sur ce site sont fournis à titre indicatif uniquement.
Prêt à en Faire Votre Maison?
Contactez-nous dès aujourd'hui pour discuter de ce modèle et commencer à construire le chalet de vos rêves
Contact Us